Maison unifamiliale - à vendre - 1030 Schaerbeek 359 000 €

Maison unifamiliale - à vendre - 1030 Schaerbeek
4 3 210 m² PEB : E

Description

Maison unifamiliale à rénover – Rue Van Schoor 45, 1030 Schaerbeek

Située à Schaerbeek à proximité de la gare du nord et du centre commercial docks , cette spacieuse maison unifamiliale offre un très beau potentiel de rénovation.

Le bien se développe sur plus de 210 m² habitables (hors caves), répartis sur quatre niveau.
Chaque niveau présente une superficie de plus de 50 m², offrant de nombreuses possibilités d’aménagement selon vos besoins.

La maison bénéficie de chaudières à condensation ainsi que d’une arrivée d’eau et de gaz à chaque niveau, un atout majeur facilitant toute rénovation ou réorganisation des espaces.

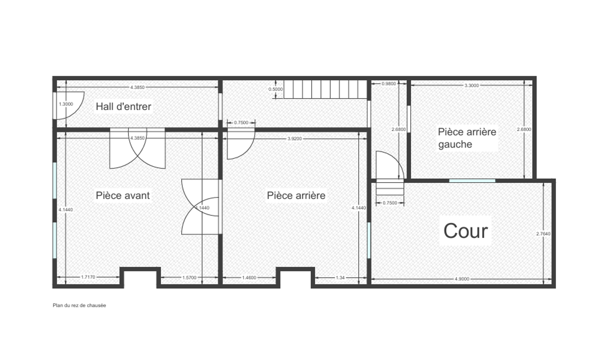
Une cour arrière d’environ 12 m² vient compléter agréablement la maison.

Les performances énergétiques varient entre un PEB E et un PEB G selon les étages.

RC = 1170€

Le bien est composé comme suit :

  • Rez-de-chaussée (±60 m²) : composé de deux grandes pièces en enfilade.
  • Entre-sol : salle d’eau (douche, lavabo, WC).
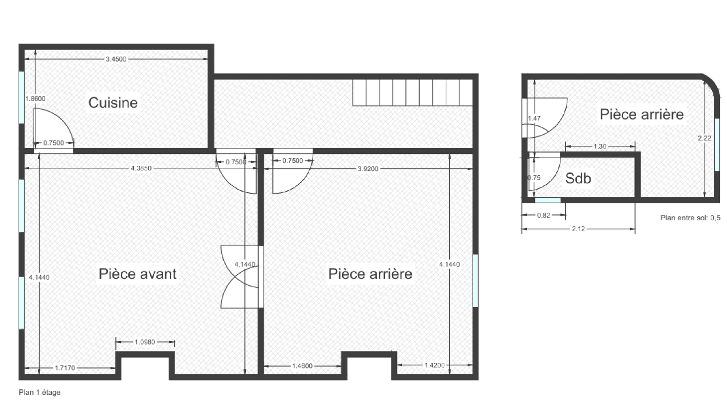
  • 1er étage (±60 m²) : composé de 2 grande pièce (hsp : 3,55) et d’une pièce de 6m²
  • 2ème étage (±55 m²) : composé de 2 grande pièce (hsp : 3,55) et d’une pièce de 6m²
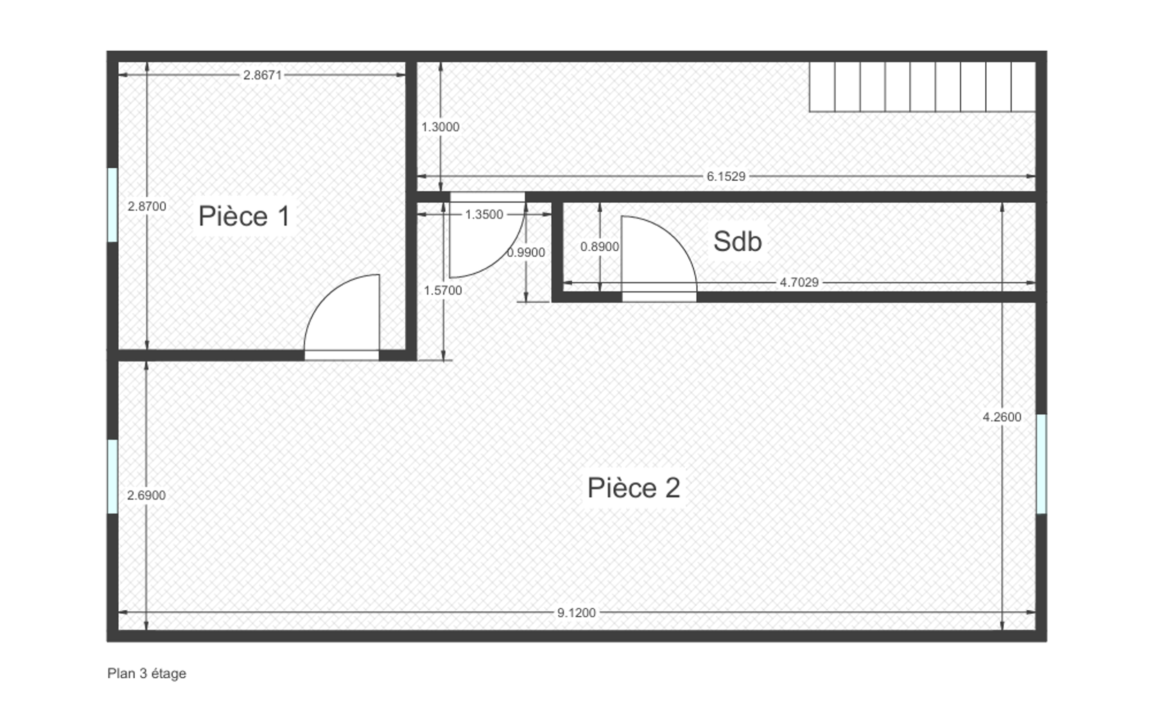
  • 3ème étage (±50 m²)
  • Sous-sol : caves de 58m²

Petite ou grande Famille ? Cette maison est pour vous ! Visites et renseignements au 02.511.10.34 - info@winstonproperties.be

Adresse :

Rue Van Schoor 45 - 1030 Schaerbeek

Général

Référence 7242166
Catégorie Maison unifamiliale
Meublé Non
Nombre de chambres 4
Garage Non
Terrasse Oui
Parking Non
Surface habitable 210 m²
Surface du terrain 72 m²
Disponibilité en fonct. du locataire

Bâtiment

Année de construction 1933
Nombre de garage 0
Parking intérieur Non
Parking extérieur Non
Parking(s) intérieur (nombre) 0
Parking(s) extérieur (nombre) 0
Type de toit en pente

Nom, catégorie & situation

Nombre d'étages 2

Equipement de base

Accès handicapés Non
Ascenseur Non
Chauffage (type) Chauffage mural
Type de cuisine équipée
Sdb (type) douche

En chiffres

Nbre de toilette(s) (nombre) 3
Nombre de sdd 3
Chambre 1 (surface) 17 m²
Chambre 2 (surface) 15 m²
Chambre 3 (surface) 17 m²
Chambre 4 (surface) 15 m²
Orientation de la terrasse 1 nord-est

Sécurité

Volets Oui

Equipement extérieur

Piscine Non

Raccordements

Électricité Oui
Télévision par cable Oui
Gaz Oui
Câbles téléphoniques Oui
Eau Oui

Spécificités terrain

Type d'environnement résidentiel
Risque d'inondation (type innondation) zone innondable potentielle

Caractéristiques Principales

Surface de terrasse 1 12 m²

Cadastre

Revenu cadastral (€) (montant) 1170 €

À proximité

Magasins Oui
Ecoles Oui
Transports en commun Oui

Divers

Grenier Oui
Cave Oui

Certificats énergétiques

Label PEB (classe) E
PEB E-SPEC (kwh/m²/an) 241
Emission CO2 (émission CO2) 48
Prendre contact pour le bien : 7242166

* Champs obligatoires

Sélection des points d'intérêts
Préférences pour les cookies

La protection de vos données personnelles est importante pour nous. C’est pourquoi nous détaillons ci-dessous les différents services et fonctionnalités du site qui utilisent des cookies et nous vous laissons décider des cookies que vous souhaitez autoriser ou refuser.

Veuillez cependant noter que si vous bloquez certains types de cookies, cela pourrait impacter votre expérience de navigation sur notre site ainsi que les fonctionnalités disponibles.

Nous utilisons des cookies fonctionnels obligatoires pour assurer le bon fonctionnement du site. Ils sont, par exemple, nécessaires pour retrouver le résultat d’une recherche ou enregistrer le choix de la langue.

Certaines fonctionnalités, comme l’affichage de vidéos ou de cartes géographiques, sont assurées via des composants externes développés par des partenaires comme YouTube ou Google. Certains composants utilisent des cookies qui sont susceptibles de permettre à ces tiers de suivre le comportement des internautes afin, par exemple, de réaliser du ciblage publicitaire. L’activation de ces fonctionnalités et des cookies associés est donc soumis à votre consentement.