Immeuble mixte - à vendre - 1030 Schaerbeek 379 000 €

Immeuble mixte - à vendre - 1030 Schaerbeek
4 2 320 m²

Description

Immeuble de rapport commerce + 2 logements avec permis

Immeuble à vendre avec permis d’urbanisme accepté pour aménagement comme suit :


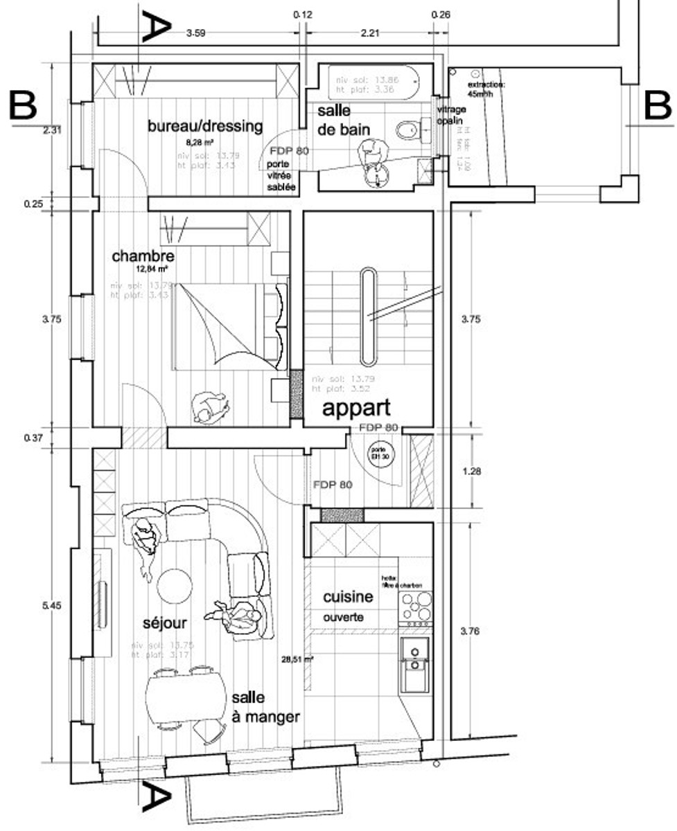
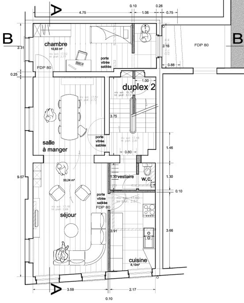
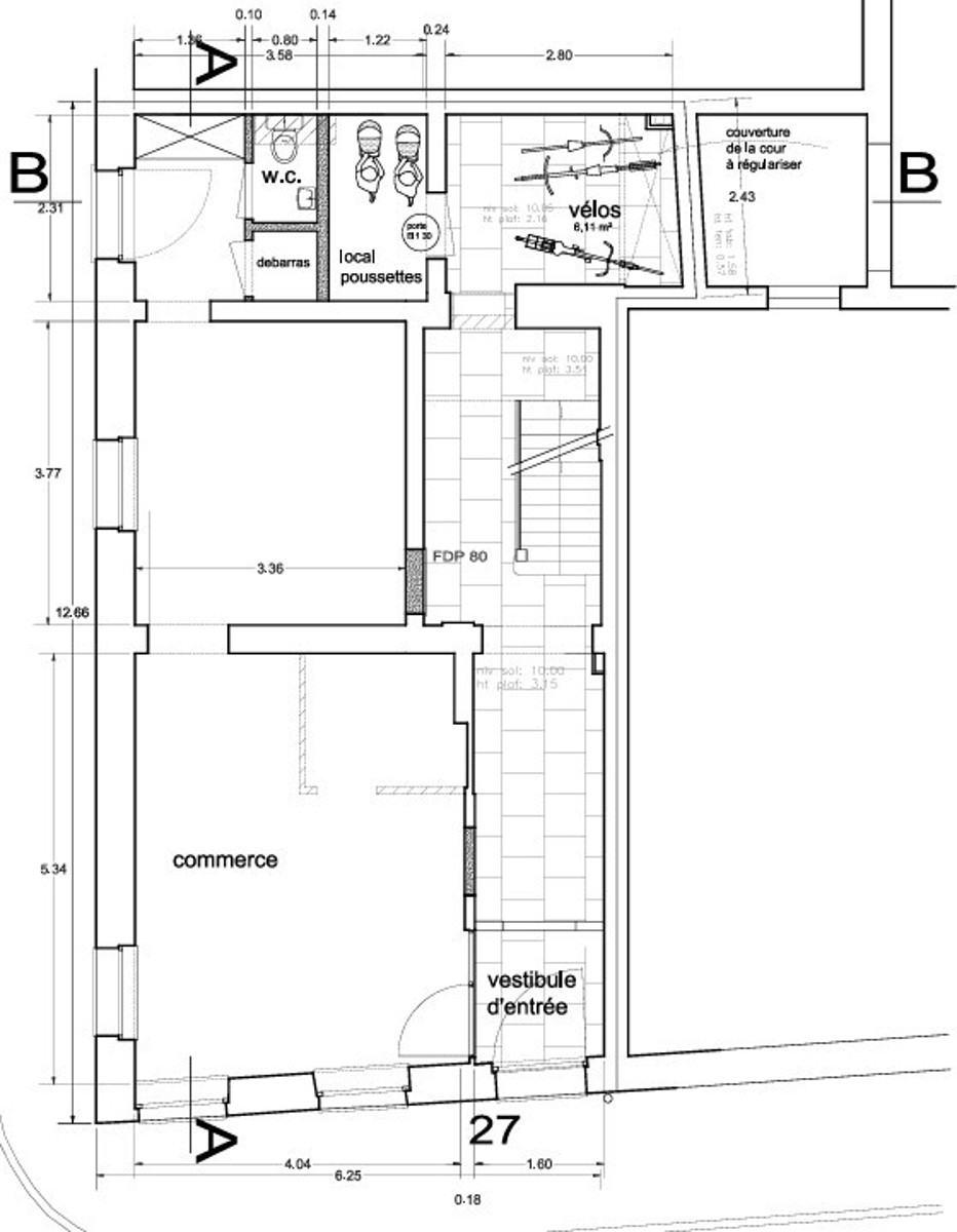
• Rez-de-chaussée : espace commercial
• 1er étage : appartement 1 chambre + bureau
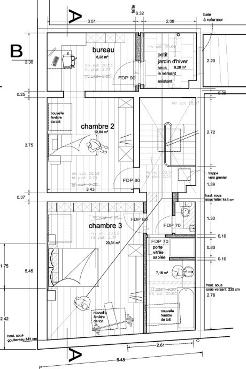
• 2e et 3e étages : appartement duplex 3 chambres

L’ensemble développe une surface totale de ± 320 m².
Le bien est à rénover entièrement. Plans et permis disponibles sur demande. Situation pratique, proche de toutes les commodités, de la gare, et à quelques minutes du centre-ville de Bruxelles.

Contactez-nous sans tarder pour organiser une visite et découvrir ce bien unique au 0471 47 84 10

Adresse :

Rue Dupont 27 - 1030 Schaerbeek

Général

Référence 7131742
Catégorie Immeuble mixte
Nombre de chambres 4
Nombre de salles de bain 2
Garage Non
Terrasse Non
Surface habitable 320 m²
Disponibilité à l'acte

Nom, catégorie & situation

Nombre d'étages 2

Equipement de base

Accès handicapés Non
Ascenseur Non
Chauffage (type) gaz

En chiffres

Nbre de toilette(s) (nombre) 3
Chambre 1 (surface) 13 m²
Chambre 2 (surface) 13 m²
Chambre 3 (surface) 11 m²
Chambre 4 (surface) 21 m²
Bureau (surface) 8 m²

Equipement extérieur

Piscine Non

Raccordements

Égouts Oui
Électricité Oui
Gaz Oui
Eau Oui

Spécificités terrain

Type d'environnement commerce
Risque d'inondation (type innondation) pas situé en zone inondable

À proximité

Magasins Oui
Transports en commun Oui

Certificats / Attestations

Certificat d'électricité (oui/non) non
Prendre contact pour le bien : 7131742

* Champs obligatoires

Sélection des points d'intérêts
Préférences pour les cookies

La protection de vos données personnelles est importante pour nous. C’est pourquoi nous détaillons ci-dessous les différents services et fonctionnalités du site qui utilisent des cookies et nous vous laissons décider des cookies que vous souhaitez autoriser ou refuser.

Veuillez cependant noter que si vous bloquez certains types de cookies, cela pourrait impacter votre expérience de navigation sur notre site ainsi que les fonctionnalités disponibles.

Nous utilisons des cookies fonctionnels obligatoires pour assurer le bon fonctionnement du site. Ils sont, par exemple, nécessaires pour retrouver le résultat d’une recherche ou enregistrer le choix de la langue.

Certaines fonctionnalités, comme l’affichage de vidéos ou de cartes géographiques, sont assurées via des composants externes développés par des partenaires comme YouTube ou Google. Certains composants utilisent des cookies qui sont susceptibles de permettre à ces tiers de suivre le comportement des internautes afin, par exemple, de réaliser du ciblage publicitaire. L’activation de ces fonctionnalités et des cookies associés est donc soumis à votre consentement.